Druckerhöhungsanlage
klick for more
Trinkwasserabschottung
klick for more
Prüfgeräte
klick for more
Dienstleistungen
klick for more
| Art.Nr.: 515020 |
![]() |
Type LW Ent Ap |
| Aufputz |
| Art.Nr.: 515021 |
![]() |
Type LW Ent K Ap, mit seitlichem Feuerlöscherfach |
| Aufputz |
| Art.Nr.: 515022 |
![]() |
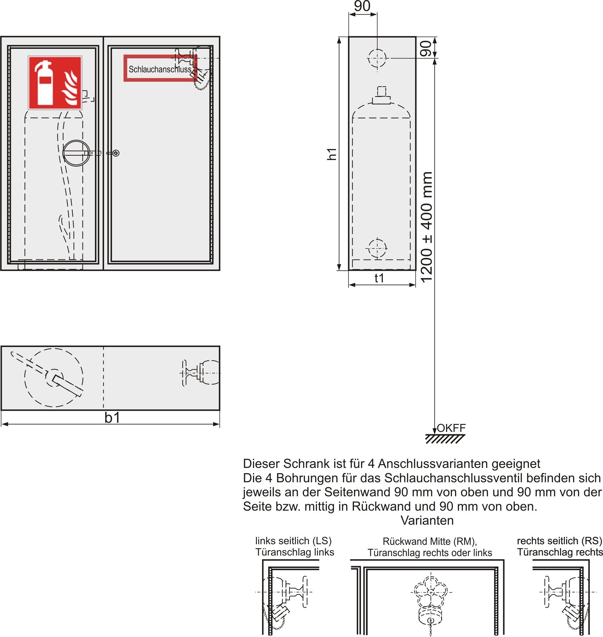
Type LW Ent Ku Ap, mit stehendem Feuerlöscher unten |
| Aufputz |
| Art.Nr.: 515024 |
|
|
Type LW Ent BEV Ap |
| Aufputz |
| Art.Nr.: 515025 |
![]() |
Type LW Ent Eb |
| Einbau |
| Art.Nr.: 515026 |
![]() |
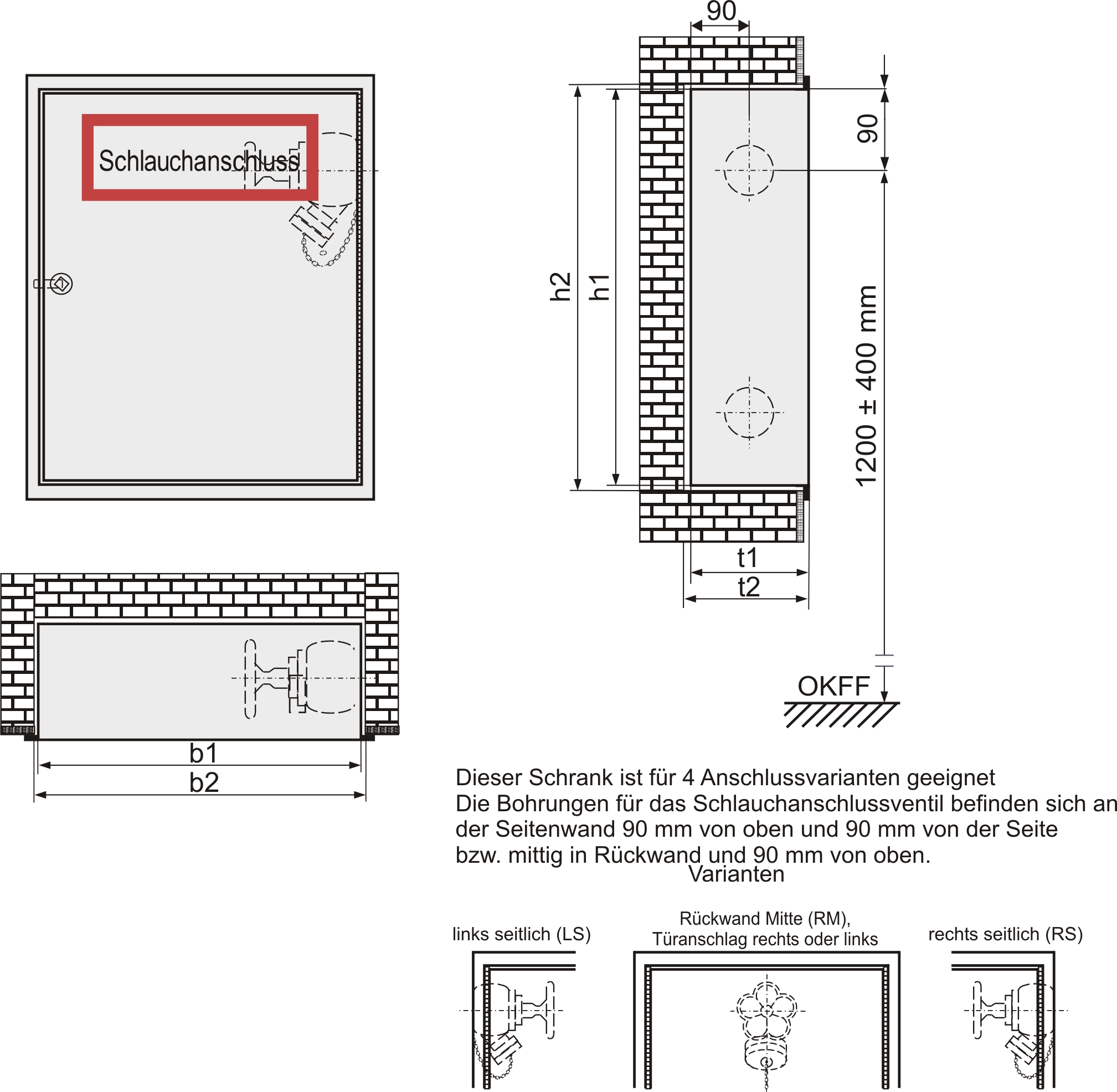
Type LW Ent K Eb, mit seitlichem Feuerlöscherfach |
| Einbau |
| Art.Nr.: 515027 |
![]() |
Type LW Ent Ku Eb, mit stehendem Feuerlöscher unten |
| Einbau |
| Art.Nr.: 515029 |
|
|
Type LW Ent BEV Eb |
| Einbau |
Die angeführten Produkte entsprechen nicht dem gesamten Sortiment.





