Druckerhöhungsanlage
klick for more
Trinkwasserabschottung
klick for more
Prüfgeräte
klick for more
Dienstleistungen
klick for more
| Art.Nr.: 512010 |
![]() |
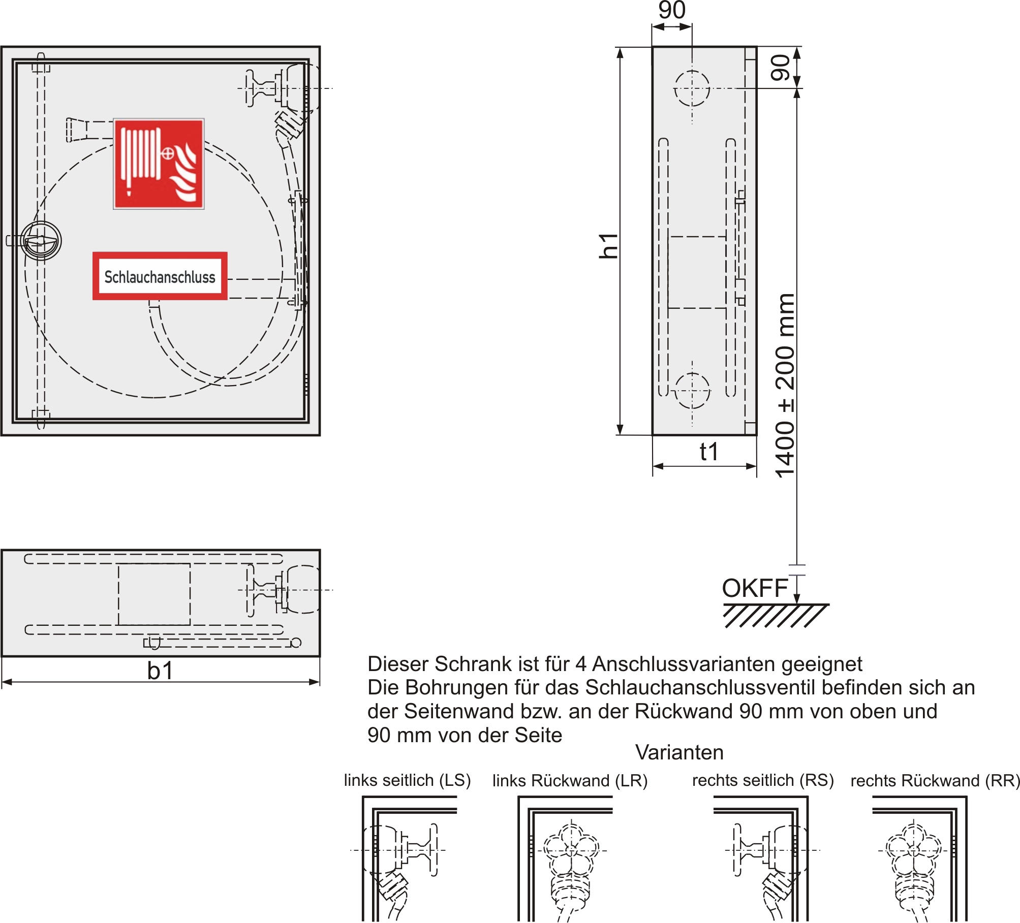
Type WH2 Ap 220 |
| Aufputz |
| Art.Nr.: 512110 |
![]() |
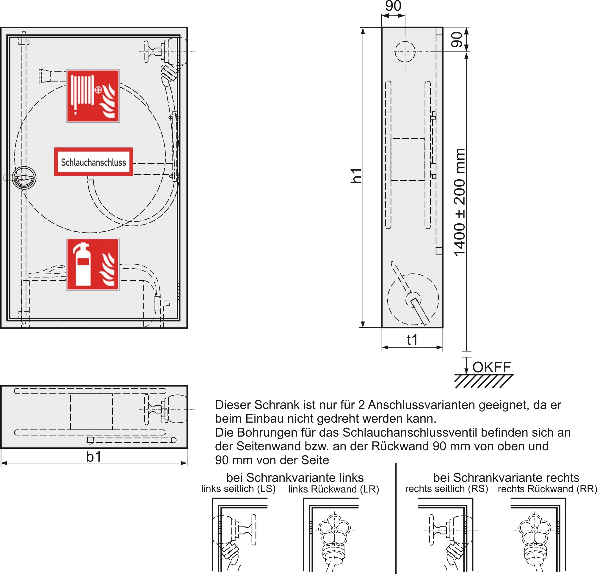
Type WH2 K Ap 220, mit Platz für seitlich stehenden Feuerlöscher |
| Aufputz |
| Art.Nr.: 512125 |
![]() |
Type WH2 Ku Ap 220, mit Platz für unten liegenden Feuerlöscher |
| Aufputz |
| Art.Nr.: 514010 |
![]() |
Type WH2 Eb 220 |
| Einbau |
| Art.Nr.: 514110 |
![]() |
Type WH2 K Eb 220, mit Platz für seitlich stehenden Feuerlöscher |
| Einbau |
| Art.Nr.: 514125 |
![]() |
Type WH2 Ku Eb 220, mit Platz für unten liegenden Feuerlöscher |
| Einbau |
Die angeführten Produkte entsprechen nicht dem gesamten Sortiment.





