Druckerhöhungsanlage
klick for more
Trinkwasserabschottung
klick for more
Prüfgeräte
klick for more
Dienstleistungen
klick for more
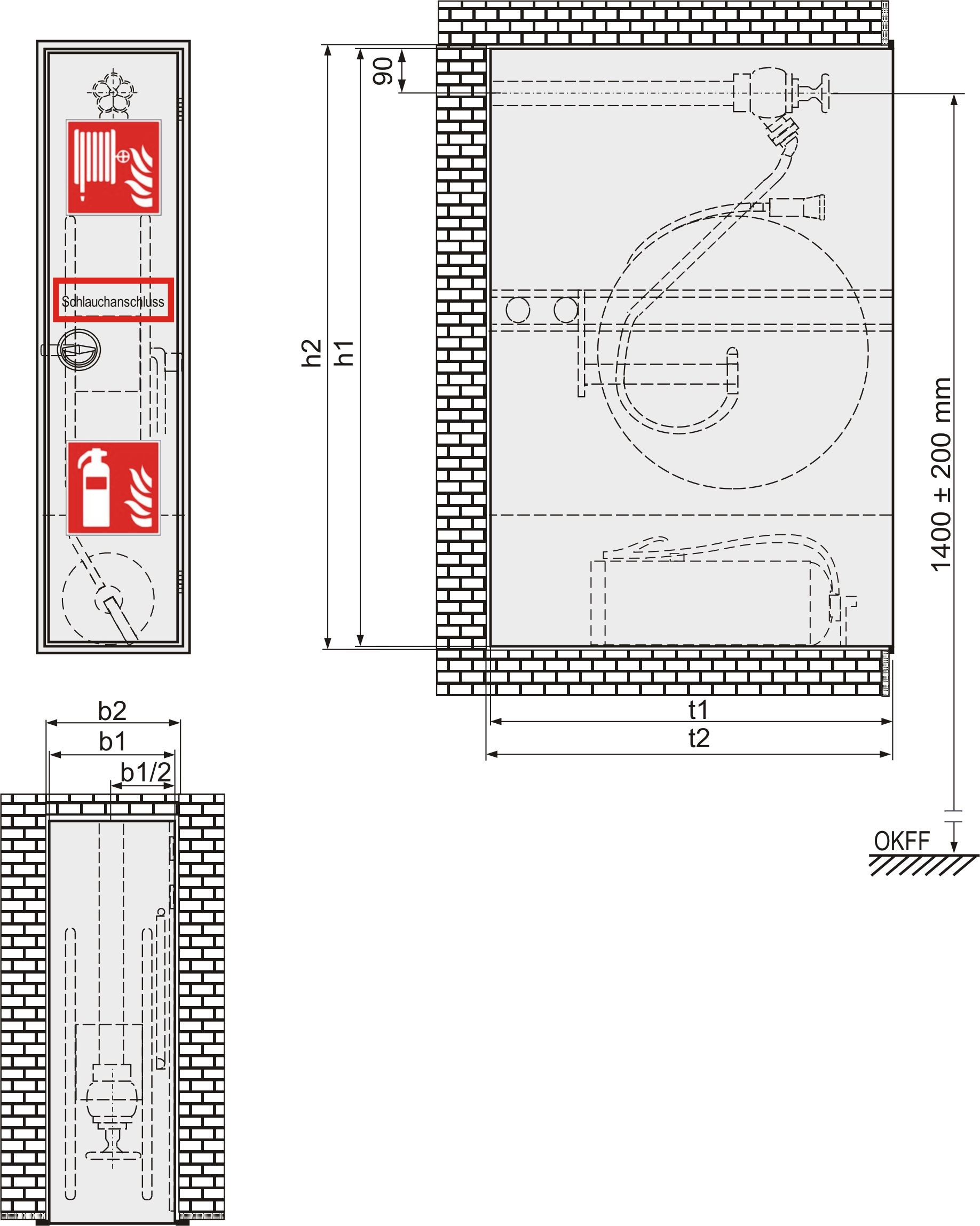
| Art.Nr.: 214230 |
![]() |
Type SD2 Ku Ap, ausziehbar |
| Aufputz |
| Art.Nr.: 214235 |
![]() |
Type SD2 Ku Eb, ausziehbar |
| Einbau |
| Art.Nr.: 515550 |
![]() |
Untergestell für Schmalhydranten Ap |
| Aufputz |
| Art.Nr.: 515552 |
![]() |
Untergestell für Schmalhydranten Eb |
| Einbau |
Die angeführten Produkte entsprechen nicht dem gesamten Sortiment.



